| NIVEAU | PIÈCE | SURFACE |
- Ref 31136263
- Ref 1023
- Type Appartement
- Ville TOULOUSE
- Pièces 4
- Chambres NC
- Surface 77 m²
- Terrain NC
- Prix 310 000 € *
Vous souhaitez devenir propriétaire sur le quartier des Sept Deniers à Toulouse, vous êtes à la recherche d'un appartement à rénover avec un jardin ?
Aujourd'hui, votre agence V O Immobilier vous propose à la vente un appartement idéalement situé au coeur du quartier, à rénover
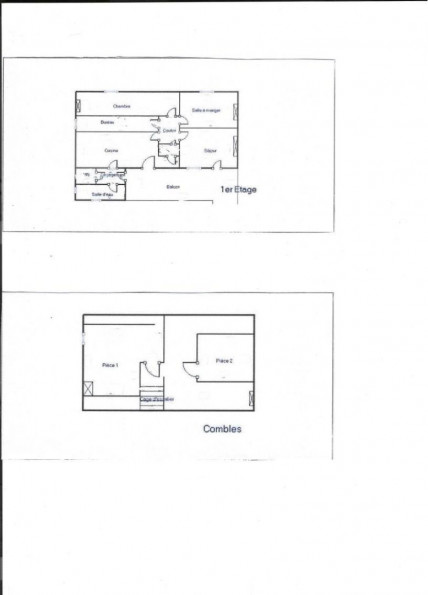
Cet appartement traversant au 1er et dernier étage d'un immeuble ancien présente une surface au sol de 78 m2 et dispose de 30 m2 de combles aménageables.
Vous bénéficierez en plus d'un jardin privatif de 750 m2 avec une dépendance.
Pour plus d'informations sur cet appartement à rénover avec jardin sur le quartier des Sept Deniers à Toulouse, n'hésitez pas à nous contacter via le formulaire de contact ou au 05 34 40 11 28. Notre équipe se tient à votre disposition pour vous renseigner et vous accompagner pour une visite.
* Honoraires charge vendeur.
- Bien
- 43.6381666
- 1.4338047
- /images/ggmap-marker.png
- click
-
AppartementTOULOUSE - 77 m²















